减速机厂家认准淄博手机在线买球官方网站,型号全

山东减速机专业厂家,供货充足,品质放心

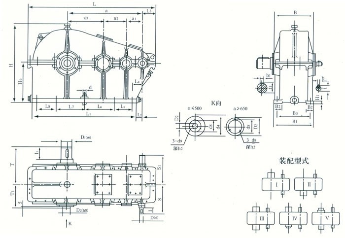
ZS型圆柱齿轮减速机

  • 产品名称: ZS型圆柱齿轮减速机
  • 产品分类: JZQ减速机
  • 公司名称: 手机在线买球官方网站
  • 添加时间: 19/10/11
  • 点击次数:  
  • 二 维 码:

    手机浏览

    更方便

产品详情


ZS系列圆柱齿轮减速机是按国家专业标准ZBJ19004生产的外啮合渐开线斜齿圆柱齿轮减速器。ZS、ZSH、ZSSH系列圆柱齿轮减速机的齿轮采用高强度低碳合金钢经渗碳淬火而成,齿面硬度达HRC58-62,齿轮均采用数控磨齿工艺,精度高,接触性好;传动率高;运转平稳,噪音低;使用寿命长,承载能力高;易于拆检,易于安装。 ZS型减速器是三级渐开线圆柱齿轮减速器,ZSH是三级圆弧圆柱齿轮减速器,ZSSH是三级双圆弧圆柱齿轮减速器。它们主要用于矿山、冶金、水泥、建筑、化工、轻工等各种机械设备的机械传动。


影响减速机价格变动的因素:

市场上每一种产品价格的定位都是根据产品的性能、材料、工艺等因素来决定的,所以,要想了解减速机的价格变动的原因,应该从这几方面去考虑:

  1、如今,随着市场钢铁价格的上涨,减速机的价格也在不断攀升,二手减速机租赁,柴油减速机出租,其次,特别是今年冬季,市电供不应求,很多北方地区已经出现了限电现象,这使得它的价格一升再升,出租发电机组,减速机租赁等信息,再者,它是由很多零件组成的,流水生产线工艺复杂,因此整套的制造成本比较高。

  2、在发电机组品牌相同,功率相同的情况下,要注意发电机的不同,选择不同的发电机则整个减速机的性能就不同,它的性能是很重要的,因此用户在选购它的时候一定要谨慎,可以根据自己的需求向该设备的销售人员进行咨询,减速机出租,减速机租赁,二手减速机出租,从而选择相匹配的设备。

  3、随着市场钢铁和铜等原材料价格的上涨,减速机的价格也在不断攀升,特别到了夏季,市电供不应求,全国各个地区已经出现了限电现象,这使得它的价格一升再升。

  看了上面对减速机价格变动原因的分析,我们可以明白该设备价格的变动是一种正常的增长,山东的消费者们一定要全方面衡量设备的价格,合理选购!



点击次数:   更新时间:19/10/11 14:09:10   【打印此页】   【关闭【返回上一页】
手机在线买球官方网站
联系人:庞经理 
手机:13708949509/13853354156 
电话:0533-4650930 
传真:0533-4650930 
地址:淄博市博山开发区张庄村西